发布时间:2023-03-10 09:10:11
6232
案例简介
本案是一套100㎡的奶油风三居室,全屋大面积采用奶油色涂刷墙面,营造出温柔治愈的氛围。同时在家具软装上采用带有复古气息的装饰,每一寸空间都仿佛蒙了一层滤镜,带有满满的质感。
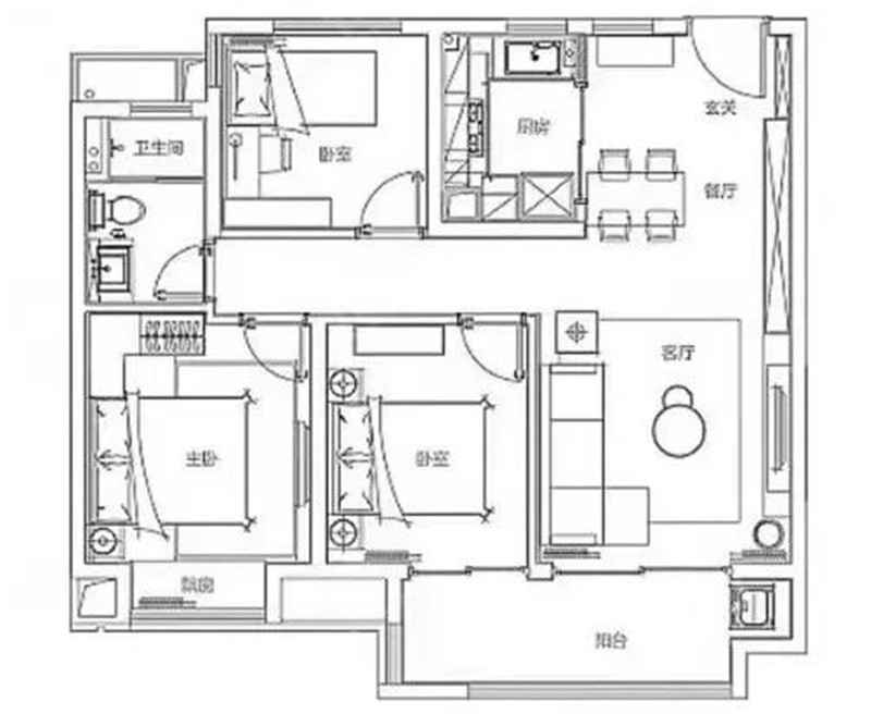
户型图

客 厅

客厅吊顶设计成造型简洁的平面吊顶,并做了无主灯设计,十分简洁利落。电视背景墙做了到顶式储物柜,竖条形状的柜门在视觉上拉伸了房屋的层高。电视嵌入设计在柜体内,和储物柜融为一体,弱化了视觉上的突兀感。
厨 房

厨房门采用了与橱柜颜色统一的木质推拉门,整体更加和谐。烹饪区的墙砖与周围做了区分,更加方便清理日常的油烟和污渍。电器嵌入设计在橱柜内部,不仅提高了空间利用率,操作起来也更便捷。
餐 厅

餐厅紧挨厨房,缩短了传菜的距离,动线更加合理。洞石餐桌和原木餐椅造型古朴,为餐厅带来浓浓的复古气息。靠窗打造一面储物柜,日常可用作餐边柜使用,缓解了厨房的部分压力。
卧 室

主卧整体色调与其他空间保持一致,奶油色墙面和木制拼接地板营造出自然舒适的休憩氛围。咖色床品颜色十分复古,增添了卧室的层次感。床头靠墙打造一面6cm厚的护墙,可用于摆放相框等装饰品。
书 房

北面的卧室改成了独立的书房,将书桌设计在靠窗区域,充分利用了窗边采光好的优势。书柜嵌入设计在墙体内,提高了书房的空间利用率。其他空间做留白处理,方便后期屋主有其他需求时进行改造。
本案米棕、深灰等中性主调交织,利落线条勾勒空间轮廓。大理石的雅致、木质的温润与金属细节碰撞,在客厅社交休憩、餐厨家庭互动等场景中,功能与美学共生,以简约大气的布局、时尚细腻的材质,打造出契合意式精致生活方式的雅致居家空间。
本案中性主调交织,利落线条勾勒空间轮廓。大理石的雅致、金属的精致与木质的温润碰撞融合,在客厅的社交休闲、餐厨的家庭互动、卧室的私密休憩、卫浴的效率整洁场景中,实现功能与美学的共生,打造出契合现代生活方式的雅致居家空间。
收口条是兼顾颜值与实用性的点睛之笔,不仅能遮盖柜体与墙面的缝隙,还能强化整体密封性,避免灰尘渗入。
用艺术吊灯、潮玩摆件、跳色软装打破单调,灯光以无主灯、线性灯为主,提升氛围强化层次。
免费上门精准测量规划
㎡